Mục lục
Ảnh thực tếGladia by The River là dự án nhà phố và biệt thự cao cấp do Công ty Cổ phần Đầu tư và Kinh doanh Nhà Khang Điền hợp tác cùng Keppel Land (Singapore) phát triển. Tọa lạc tại mặt tiền đường Võ Chí Công, phường Bình Trưng Đông, TP. Thủ Đức, TP. Hồ Chí Minh, dự án có quy mô 6,2 ha, bao gồm 168 căn nhà phố liên kế và biệt thự sang trọng. Với cảm hứng từ vẻ đẹp thanh lịch của dòng sông Rạch Chiếc, Gladia được thiết kế để mang lại không gian sống hiện đại, gần gũi thiên nhiên, và riêng tư cho cộng đồng cư dân tinh hoa.
Tổng quan dự án
Gladia by The River sở hữu vị trí chiến lược ngay trung tâm TP. Thủ Đức, nơi được xem là “thủ phủ kinh tế” mới của TP. Hồ Chí Minh sau sự kiện sáp nhập Bình Dương vào TP. Hồ Chí Minh từ ngày 1/7/2025. Nằm trên trục đường Võ Chí Công, dự án kết nối thuận tiện đến các khu vực trọng điểm:
5 phút đến Khu đô thị Thủ Thiêm qua cầu Thời Đại.
15 phút đến Quận 1 qua hầm Thủ Thiêm hoặc cầu Sài Gòn.
20 phút đến Phú Mỹ Hưng qua đường Nguyễn Văn Linh.
30 phút đến sân bay quốc tế Long Thành qua cao tốc TP. Hồ Chí Minh – Long Thành – Dầu Giây.
Vị trí này không chỉ mang lại sự tiện lợi về giao thông mà còn đảm bảo tiềm năng tăng giá bất động sản nhờ hạ tầng giao thông đồng bộ và sự phát triển mạnh mẽ của khu Đông Sài Gòn.
Ảnh thực tế dự án
Gladia by The River được thiết kế như một khu nghỉ dưỡng thu nhỏ, với hệ thống tiện ích nội khu hiện đại và đa dạng:
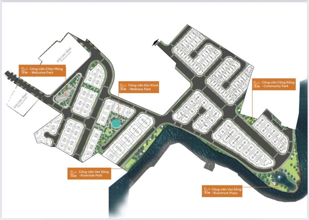
Công viên ven sông: Diện tích 1,5 ha với đường dạo bộ, ghế nghỉ và khu vực ngắm cảnh, mang lại không gian thư giãn lý tưởng.
Hồ bơi tràn bờ 500 m²: Thiết kế hiện đại, phân khu riêng cho trẻ em và người lớn.
Khu thể thao đa năng: Bao gồm sân tennis, sân bóng rổ, và khu gym ngoài trời, đáp ứng nhu cầu rèn luyện sức khỏe.
Khu BBQ và quảng trường sự kiện: Không gian lý tưởng cho các buổi tiệc ngoài trời và hoạt động cộng đồng.
Nhà trẻ và khu vui chơi trẻ em: Được thiết kế an toàn, sáng tạo, hỗ trợ sự phát triển toàn diện của trẻ nhỏ.
Hệ thống tiện ích được bố trí hài hòa, đảm bảo cư dân có thể tận hưởng cuộc sống tiện nghi ngay trong khuôn viên dự án.


Tiện ích nội khu
Gladia by The River mang phong cách kiến trúc hiện đại kết hợp với các đường nét Á Đông, tạo nên sự hài hòa giữa vẻ đẹp truyền thống và đương đại. Các loại hình sản phẩm bao gồm:
Nhà phố liên kế: Diện tích từ 90-120 m², thiết kế 1 trệt 3 lầu, phù hợp cho gia đình trẻ.
Biệt thự song lập: Diện tích 150-200 m², bố trí sân vườn trước và sau, tối ưu ánh sáng tự nhiên.
Biệt thự đơn lập: Diện tích 220-300 m², thiết kế như những dinh thự nhỏ với không gian xanh bao quanh.
Mỗi căn nhà được bàn giao hoàn thiện mặt ngoài và thô bên trong, sử dụng vật liệu cao cấp như kính cường lực, đá tự nhiên và gỗ công nghiệp chống ẩm. Các căn nhà được thiết kế với giếng trời, ban công rộng và cửa sổ lớn, đảm bảo không gian sống thông thoáng và gần gũi thiên nhiên.






Thiết kế sang trọng
Tính đến tháng 7/2025, Gladia by The River đã hoàn thành 95% phần móng và đang tiến hành xây dựng phần thân. Dự kiến, dự án sẽ cất nóc vào quý II/2026 và bàn giao vào quý IV/2026. Chủ đầu tư Khang Điền và Keppel Land cam kết đảm bảo tiến độ thi công với chất lượng cao, hợp tác với đơn vị thi công uy tín Coteccons và quản lý vận hành bởi CBRE.
Về pháp lý, dự án đã hoàn thiện các giấy tờ quan trọng:
Quyết định phê duyệt quy hoạch 1/500 (tháng 12/2024).
Giấy phép xây dựng (tháng 3/2025).
Chứng nhận quyền sử dụng đất và bảo lãnh ngân hàng.
Mỗi căn nhà phố và biệt thự tại Gladia đều được cấp sổ hồng riêng, đảm bảo quyền sở hữu lâu dài và minh bạch.
Với mức giá dự kiến từ 24 tỷ đồng cho nhà phố liên kế và từ 40 tỷ đồng cho biệt thự, Gladia by The River mang đến cơ hội đầu tư sinh lời cao nhờ:
Vị trí chiến lược: Gần các khu công nghiệp và trung tâm tài chính, thu hút lượng lớn chuyên gia và doanh nhân có nhu cầu thuê nhà cao cấp.
Khan hiếm sản phẩm thấp tầng: Với chỉ 168 căn, Gladia là một trong những dự án nhà phố compound hiếm hoi tại TP. Thủ Đức.
Chính sách ưu đãi: Thanh toán linh hoạt qua 10 đợt, hỗ trợ vay đến 70% giá trị với lãi suất 0% trong 18 tháng.
Dự án cũng được hưởng lợi từ sự phát triển hạ tầng của TP. Thủ Đức, như cầu Cát Lái và cao tốc Long Thành – Dầu Giây, đảm bảo giá trị gia tăng bền vững trong tương lai.
Khang Điền, với hơn 20 năm kinh nghiệm, đã khẳng định vị thế qua các dự án như The Venica, Verosa Park và The Classia. Sự hợp tác với Keppel Land, tập đoàn bất động sản hàng đầu Singapore, mang lại sự đảm bảo về chất lượng xây dựng, thiết kế và vận hành. Sự kết hợp này không chỉ nâng tầm giá trị của Gladia mà còn tạo nên một cộng đồng cư dân văn minh, đẳng cấp.
Gladia by The River không chỉ là một dự án nhà phố, mà còn là biểu tượng của phong cách sống thượng lưu, nơi thiên nhiên và tiện nghi hòa quyện. Với vị trí đắc địa, thiết kế tinh tế, tiện ích hiện đại và tiềm năng đầu tư vượt trội, Gladia là lựa chọn lý tưởng cho những ai tìm kiếm một tổ ấm đẳng cấp hoặc một kênh đầu tư sinh lời bền vững.
Liên hệ ngay hotline 0901.494.059 để nhận thông tin chi tiết, tham quan nhà mẫu và ưu đãi đặc biệt trong đợt mở bán đầu tiên vào quý III/2025!
Địa Chỉ : 23 Đường 11, KĐT VẠN PHÚC , Thủ Đức , TP. HCM
Hotline: 0901494059
Email: tanphanvan946@gmail.com